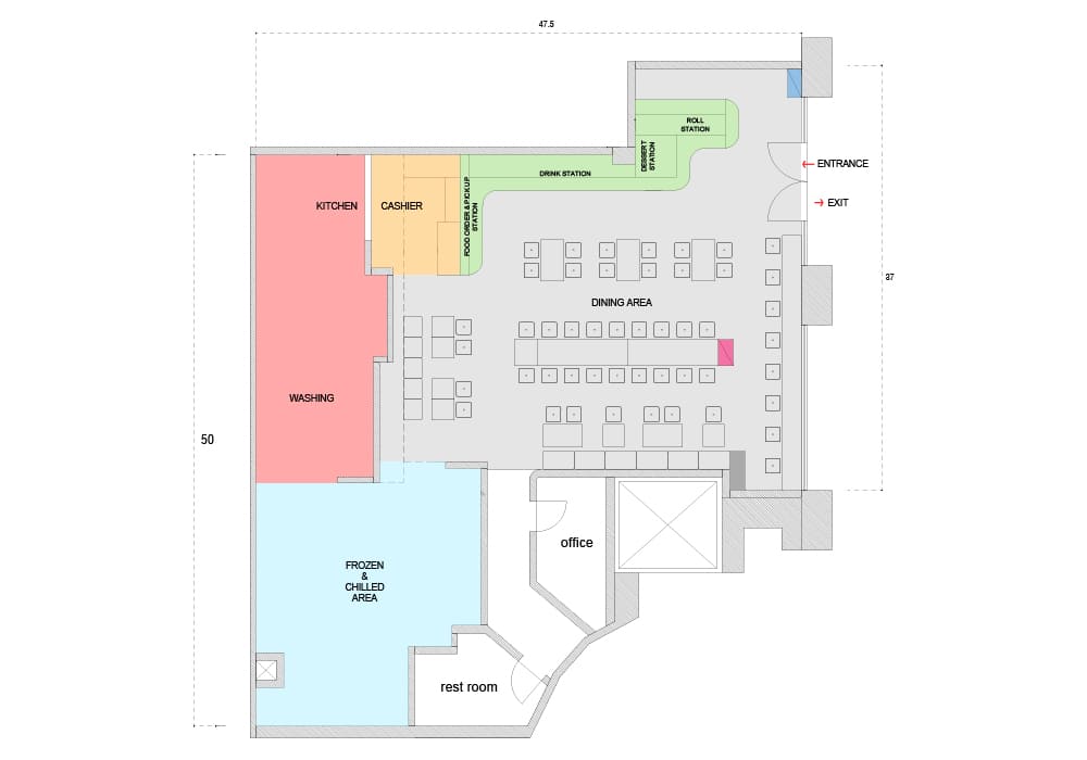
Project: Interior Design

Brand: Pho Hai Hum_San Jose, USA    Year: 2019